
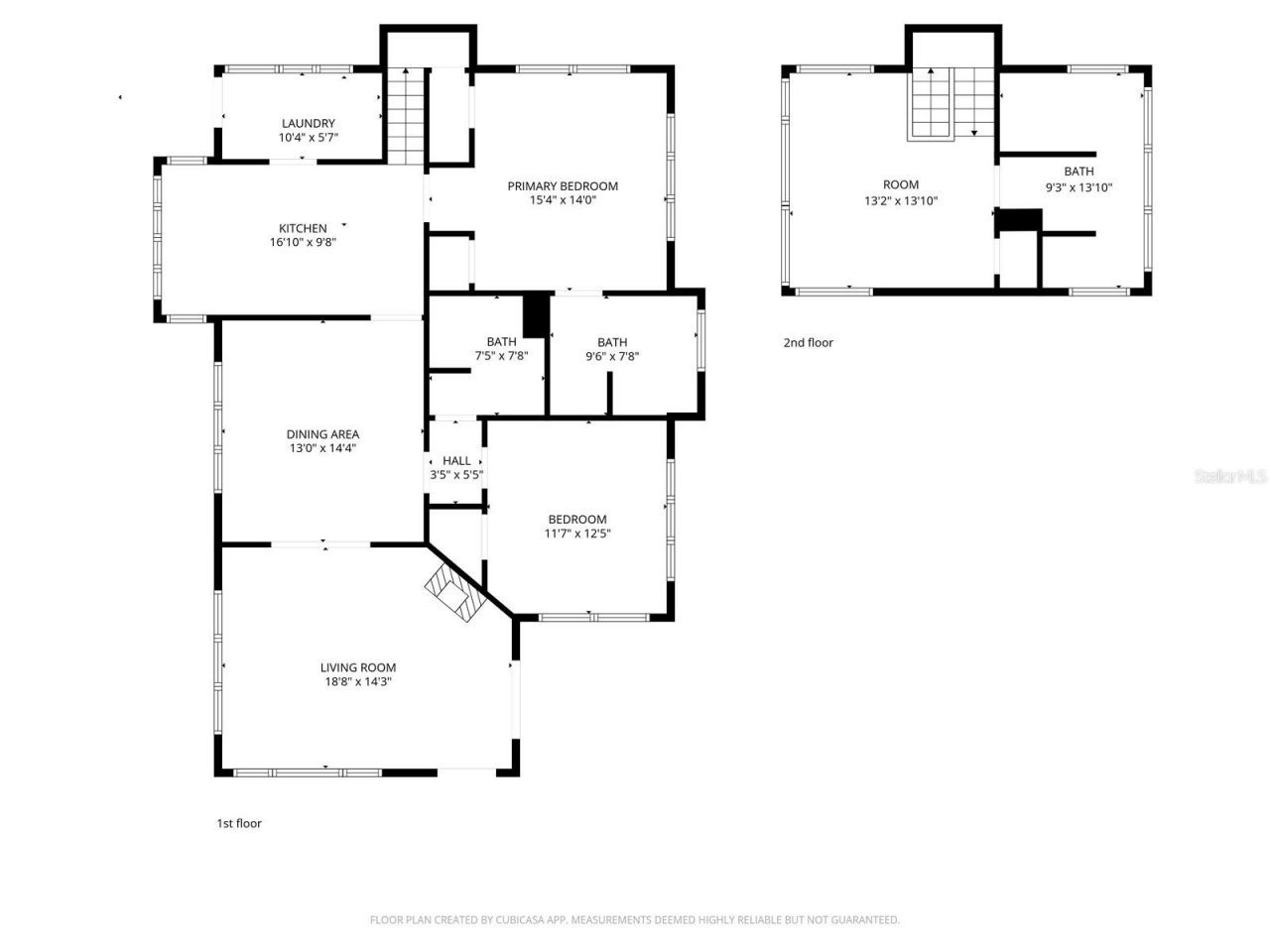
Welcome to the W. B. Sewell House built in 1922 for William B Sewell cashier for Carter and Deen's First National Bank and also occupied by Howard B Trauger, a contractor who built the Lake Mirror Promenade! Located in the South Lake Morton Historic District this bungalow style home has been beautifully restored and maintained with today's conveniences yet keeping the charm of yesteryear! Sitting on a double lot with a view of Lake Morton from the porch this 3/3 with over 1700 square feet of liv...Welcome to the W. B. Sewell House built in 1922 for William B Sewell cashier for Carter and Deen's First National Bank and also occupied by Howard B Trauger, a contractor who built the Lake Mirror Promenade! Located in the South Lake Morton Historic District this bungalow style home has been beautifully restored and maintained with today's conveniences yet keeping the charm of yesteryear! Sitting on a double lot with a view of Lake Morton from the porch this 3/3 with over 1700 square feet of living area offers so much from the heart of pine log cabin design floors in the living areas to the elegant master suite to the modern kitchen to the double garage with workshop and don't forget the front porch! Upstairs is a loft style private suite with amazing neighborhood views. The kitchen has been updated with quartz counters, wood cabinets and modern stainless appliances. All 3 baths have been updated but still retain the 1920's feel. Electric, plumbing and insulation have been updated as well. The roof was replaced in 2023, the HVAC in 2025, a new irrigation system in 2025. The house is under warranty for drywood termites which is transferrable. A motor home sewage drain is conveniently located between the side of the house and driveway as well as an electrical hookup! Current 4 point and wind mit inspections are available to review. Don't miss this rare opportunity to own a little piece of Lakeland's history on one of the City's loveliest streets - Success!Note: The South Lake Morton Historic District contains Lakeland's largest concentration of pre-1930 residential buildings and maintains a very high degree of architectural integrity. There is a very active neighborhood association - The Lake Morton Neighborhood Association.
View MoreCourtesy of
Agency Name: REMAX EXPERTS
Agency Contact: adockery@remax.net
Agent Name: Betsy Martin
Presented by
Agent Name: Miami Beach
Agent Phone: 305.531.5803
Agency Title: The Keyes Company
Request Info
Send an email with a link to
832 Success Avenue , Lakeland, FL 33801.
Email 832 Success Avenue , Lakeland, FL 33801
Thank you for your inquiry! As a thank you, we have a Special Mortgage Offer for You.
We would like to provide you a free, no-obligation, home loan pre-approval review.